Projeto Planimétrico, Projeto Águas Pluviais, Projeto Água Potável e Projeto Rede Esgoto do Loteamento Residencial Dona Izabel em Itamonte - MG com área total de 198.757,50m2.
quinta-feira, 29 de dezembro de 2011
sexta-feira, 23 de dezembro de 2011
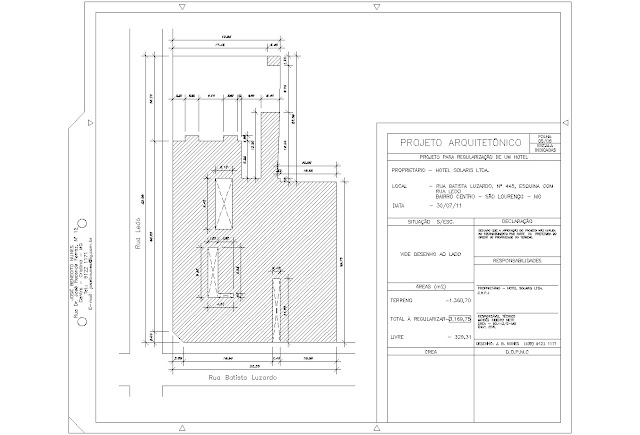
PROJETO ARQUITETÔNICO HOTEL SOLARIS SÃO LOURENÇO - MG
Projeto Arquitetônico Completo Hotel Solaris em São Lourenço - MG com área construída de 3.169,75m2.
quinta-feira, 22 de dezembro de 2011
JBN Projetos & Desenhos
JBN Projetos e Desenhos
Tel. (35) 9122.1171(TIM) (35) 9936.8811(VIVO)
email: josebnunes@ig.com.br
Blog: www.jbnprojetosedesenhos.blogspot.com.br
Rua Dr. José Rezende Ferraz, nº12 – Centro
email: josebnunes@ig.com.br
Blog: www.jbnprojetosedesenhos.blogspot.com.br
Rua Dr. José Rezende Ferraz, nº12 – Centro
Cristina – MG
Confeccionamos seus Projetos Arquitetônicos, Estruturais, Elétricos, Telefônicos, Planimétricos, Topográficos, Hidráulicos, Sanitários, Desmembramentos, Fusões, Retificações, Regularizações, Orçamentos e ainda Administramos sua Obra
Assinar:
Postagens (Atom)